- 16.6ft MD Couples (Single Axle)
- 18.6ft MD Couples (Single Axle)
- 18.6ft RD Couples (Single Axle)
- 18.6ft EW Couples (Single Axle)
- 19ft Couples A
- 19ft Couples B
- 19ft RD Couples
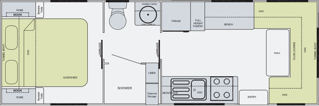
- 20ft Couples
- 20.6ft Couples
- 21ft RD Couples
- 22ft RD Couples
- 22ft MD Couples
- 22.8ft Couples
- 22.10ft Couples (Dual-Entry)
- 20ft XT MD
- 20ft XT RD
- 21ft XT
- 22ft XT

16.6ft MD Couples (Single Axle)

20ft XT MD

The Premium Couples Experience
The Overland Couples series has become the caravan of choice for adventurous couples seeking to explore Australia’s most spectacular destinations without compromising on comfort or functionality. Whether you’re chasing sunsets along remote coastlines or discovering hidden gems in the outback, this premium range delivers exceptional comfort for every adventure.
With its innovative living space specifically designed for two and thoughtful layout that maximises both intimacy and functionality, the Overland Couples series redefines what couples travel can be. Every element has been carefully considered to enhance your shared experiences – from quiet mornings with coffee watching the sunrise, to cosy evenings planning your next adventure.
For couples who refuse to choose between adventure and luxury, this is your perfect travel companion.

Explore, Relax, Enjoy!
Australis Caravans is driven to design and build innovative, modern caravans with the right combination of features, smart comfort and safety. The Overland series exemplifies Australis’s design philosophy – combining smart features with premium comfort and exceptional build quality for memorable Australian adventures.

Signature Features
Couples-Optimised Layout : Spacious east-west bed or island bed configuration with individual reading lights and optional 12V fans for personalised comfort.
Designer Kitchen : Black sink with matching tapware, dedicated filtered drinking water, and recessed cooktop with griller and fan-forced oven.
Intelligent Storage Solutions : Sectioned full-height pantry and strategically placed wardrobes maximize usable space
Comprehensive Entertainment : Smart TV and Bluetooth stereo system with internal and external speakers
XT Model’s Exclusive ‘Gold Class’ slide out Lounge : Elevated club lounge with built-in cupholders and reading lights transforms at the push of a button.

Off Grid Capability
Advanced Power System : Battery bank with substantial rooftop solar array
Optional High-Capacity Inverter : Powers all outlets for genuine off-grid comfort
Water Management : Multiple freshwater tanks with grey water storage for extended stays
Outdoor Living : Slide-out BBQ tray •
Extended Storage : Practical A-frame toolbox with dual-side slide-outs for portable fridge and generator options

Features & Specifications
- Bed: Gas Lift Island bed or East/West fixed bed (*subject to layout)
- Mattress: Innerspring Pillow Top
- TIC Infill Cushion: Optional
- Table: Drop down with telescopic leg (L-Shape and Club Lounge) or Bi-Fold (Café Dinette)
- Windows: Double Glazed with Built-In Blind
- Entry Door: Dust Proof with Crim Proof Mesh Screen (Tri-Lock) with built in blind
- Drawers: Soft Close with lock handles
- Flooring: Vinyl
- Floor : One Piece Marine Grade Plywood (One Piece lightweight Honeycomb – optional)
- 12V LED Roof Hatch : 700mm x 500mm
- 12V LED Roof Hatch: 450mm x 400mm
- 12V LED Power Hatches (x2): 320mm x 320mm (Toilet and Shower area)
- Benchtops: Square Edge Laminate
- Benchtop over Stove: Square Edge Laminate
- Furniture: Flat pack contemporary style CNC Cut furniture
- Cupboard Handles (OHC): Hidden Catches
- Cupboard Handles (Lower cupboards): Flush mounted lock catches (Matt Black)
- Hinges: Concealed Hinges
- Cupboard door struts: Gas Strut (60N)
- Cupboard doors finish: Matt or Gloss, large choice of colours
- Splashback: Laminate; (Acrylic optional)
- Ensuite Door: Sliding door with travel lock
- Shower Door: Black frame with frosted glass; (Mirrored glass – optional)
- Upholstery: Faux Leather with exposed stitching; (Genuine leather – optional)
- TV Bracket: 1 x Arm removable (Bedroom or Kitchen)
- Smoke Detector: 9V Photoelectric with hush button (battery operated)
- Fire extinguisher: 1kg in white or black housing
- Towel and Toilet roll holder: Black
- Air Conditioner : Reverse cycle, low noise, slimlined rooftop A/C
- Recessed Oven: Fan Forced Full Oven ; (Mini Grill with Pot drawer under-optional)
- Rangehood: Recessed with touch screen
- Microwave: 25L with mounting bracket
- Hot Water System: 28L Gas/Electric HWS ; (Instantaneous HWS-Optional)
- TV: 24” Smart TV
- Stereo: CD/DVD with Bluetooth
- Toilet: Ceramic Bowl Cassette Toilet
- Washing Machine: 3.5kg (12V) Top Loading (5kg/3.2kg Front Loaders applicable on some models)
- Fridge/Freezer : 180L 3-way or Compressor Fridge with freezer
- Diesel Heater: One outlet fitted under Bed or Lounge
- 10A Outlet: Black
- 15A Inlet: Black
- Breakaway Controller : Trailsafe
- Aerial: Black Flexible Rubber
- Antenna: Winegard Sensar HR or 360 AIR
- Battery Management Charger System: Projecta Intelli-RV Gen II 30amp
- Colour LCD Display: 7” LCD Colour Touch Display
- Batteries: 1 x 225A lithium battery
- Solar Panels: 2 x 200W (Monocrystalline Solar Panels) on Roof; (Extra Panelsoptional)
- Reading Lights (Black): White LED Light with USB-C port (2-Bedroom and 2-Lounge)
- Power Points: Modern Black Acrylic
- Anderson Plug-1: 50A Grey Anderson Plug on A-Frame for charging battery
- Anderson Plug-2: Road Side on chassis rail for Portable Solar Panel
- Pin Plug: 12 Pin flat plug
- Step Light: Blue strip lighting around step
- Strip Lights (recessed): Under OHC in Bedroom, Kitchen, Seating and Ensuite Area
- Tunnel Boot Lights: 2 x Tunnel Boot LED Lights
- Tail Lights: Screw-On Tail Lights
- Markers: Red/Amber, Red, Clear
- Licence Plate Light: LED Licence Plate Lamp (Black)
- Bar Lights: 2 x Bar Lights (Front and Back)
- Annex Lights: 3 x Anti Bug Lights on Annex Side
- Downlights: 75mm LED
- Speakers (Internal): 2 x 6.5” White Ceiling Speakers
- Speakers (External): 2 x 6.5” Black Outdoor Marine Speakers
- Reverse Camera: Black Reversing Camera with LCD Display
- Sway Control: Anti Sway Control System
- External Tap : Tap on A-Frame with C/Plate protection
- Fresh Water Tanks chassis: 2 x 95L Fresh Water Tanks with Gal-sheet protection under
- Grey Water Tank Gal-sheet protection under: 1 x 95L Grey Water Tank with chassis
- Pump: 12V Water Pump
- 3-Way Kitchen Tap: All in one Water filter with Mixer Tap to Kitchen Sink (Black)
- Tapware: Kitchen and Bathroom (Black)
- Sink (Kitchen): Black Granite Stone Kitchen sink with drain; (No Drain Sink-optional)
- Basin (Ensuite): Black Round Ceramic Basin
- Gas Bayonette: Located on Annex Side of the Van near the Tunnel Boot
- External Shower: Hot/Cold (Water Marked)-Black
- Diesel Heater Tank: 5L Stainless Steel Tank with C/ Plate protection
- Water Fillers driver side: 2 x Lockable Water fillers on
- Fas Fill Connection Fresh Water Tanks: Fast Water Fill connection to
- Gas Bottles: 2 x 9kg Gas bottles on A-Frame
- Toolbox: Black C/Plate Toolbox with Generator slide on Off Side
- Jerry Cans: 2 x Jerry Cans (one on each side of Toolbox)
- Awning: Roll out manual Awning (Charcoal)
- Tunnel Boot : Dual Access with large C/Plate Doors
- TV Bracket: TV “V” Bracket (located near TV Pt)
- Picnic Table: Black lockable Picnic Table
- Step: Dual Pull-Out Step (Manual)
- Step Well: Checker Plate
- Wheel Spats: Checker Plate
- Wheel Boxes: Galvanized
- Wheels: 16” Alloy Wheels (Matt Black)
- Spare Wheel: 1 x 16” Alloy wheel on Rear Bumper (*Underslung at front on some models)
- Tyres: 265/75 R16, A/T Tyres
- Stone Guard: Stone Guard “D-Flector” on A-Frame
- BBQ Slide: Slide-Out Weber Baby Q Slide in Tunnel Boot
- Checker Plate Sides: H600mm
- Checker Plate Front: H1000mm
- Checker Plate Back: H600mm
- Cladding Sides, Front and Back: Flat Aluminium Composite
- Roof: Fiberglass
- Frame: Meranti
- Insulation: Styrene (Walls and Roof
- Tandem Axle Van Models : 3.5T Independent Heavy Duty Suspension with Shock Absorbers
- Single Axle Van Models: 3T Independent Heavy Duty Suspension with Shock Absorbers
- Hitch: DO35
- Deck: 4” Chassis (Deck) and R’ Riaser
- A-frame: 6”
- Jockey Wheel: 8” Alko
- Brakes: 12” Drum
- A-frame : Stainless Steel Tray under
- Jack Corner : Supports 4
- Bumper: 4 Arm (Rear)
- Kack: Kojack (Bottle Jack)
Frequently Asked Questions
Lorem ipsum dolor sit amet, consectetur adipiscing elit, sed do eiusmod tempor incididunt ut labore et dolore magna aliqua.
Lorem ipsum dolor sit amet, consectetur adipiscing elit, sed do eiusmod tempor incididunt ut labore et dolore magna aliqua.
Lorem ipsum dolor sit amet, consectetur adipiscing elit, sed do eiusmod tempor incididunt ut labore et dolore magna aliqua.
Lorem ipsum dolor sit amet, consectetur adipiscing elit, sed do eiusmod tempor incididunt ut labore et dolore magna aliqua.
Lorem ipsum dolor sit amet, consectetur adipiscing elit, sed do eiusmod tempor incididunt ut labore et dolore magna aliqua.



















